Mosaic Logo

3 Pinnacle View RoadAsheville, NC 28803Price: $549,000

  • Price: $549,000
  • Est. Mortgage of $/month
$
$
%
$/month over payments
Federal 30-year interest rate: 6.22% last updated on Nov 6, 2025
* All Figures are estimates. Check with your bank or proposed mortgage company for actual interest rates.
This product uses the FRED® API but is not endorsed or certified by the Federal Reserve Bank of St. Louis.
  • $549,000List Price
  • 4Bedrooms
  • 3Full Bath
  • 1Half Baths
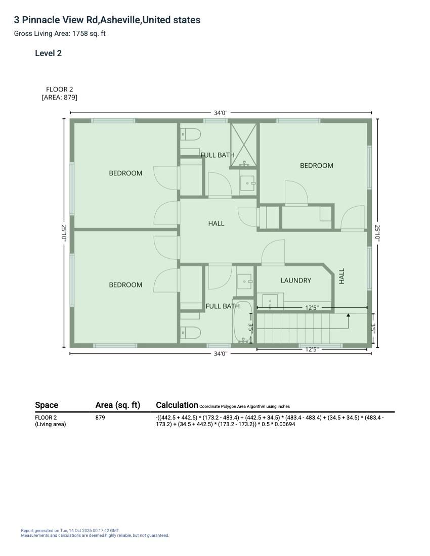
  • 1,758Square Feet
  • 0.15Acreage
  • CAR4303110MLS Number
Brand-new construction in sought-after Oakley! This 4BR/3.5BA home features a main-level master suite, open layout, and elegant floors throughout. Thoughtfully designed with a crawlspace plus attic storage for extra space. Enjoy the covered deck and entryway, perfect for relaxing or entertaining. Three-car parking provides plenty of room for family and guests. Conveniently located close to downtown Asheville but outside city limits-offering both accessibility and lower taxes. A modern home that blends comfort, function, and style in one of Asheville's most desirable neighborhoods.

Listing Tools

Property Details of 3 Pinnacle View Road

Property Details

Interior Features

Exterior Features

Utilities and Appliances

Community

Other Details

Map Location

Driving Directions

Listed by Jonathan Gonzalez of NextHome Partners (jonathan@nexthome828.com)

Broker Reciprocity © 2025 Listings courtesy of Canopy MLS as distributed by MLS GRID. IDX information is provided exclusively for consumers’ personal non-commercial use and may not be used for any purpose other than to identify prospective properties consumers may be interested in purchasing. The IDX data is deemed reliable but is not guaranteed by MLS GRID and may be subject to an end user license agreement prescribed by the Member Participant’s applicable MLS.  Based on information submitted to the MLS GRID as of November 8, 2025 3:45 AM EST . All data is obtained from various sources and may not have been verified by broker or MLS GRID. Supplied Open House Information is subject to change without notice. All information should be independently reviewed and verified for accuracy. Properties may or may not be listed by the office/agent presenting the information. Some IDX listings have been excluded from this website.

Hi there! How can we help you?

Contact us using the form below or give us a call.

Send Us A Message:

I agree to receive marketing and customer service calls and text messages from Mosaic Community Lifestyle Realty. To opt out, you can reply 'stop' at any time or click the unsubscribe link in the emails. Consent is not a condition of purchase. Msg/data rates may apply. Msg frequency varies. Privacy Policy.

Do not fill in this field:

This site is protected by reCAPTCHA and the Google Privacy Policy and Terms of Service apply.
Asheville Area

Mosaic Realty

Similar
Listings

Say Hello

Contact Us

You deserve to live in the home of your dreams and we want to help facilitate that process. Contact us for more details.

Stay Updated

Send A Message